Rénovation totale, magnifique appartement situé dans les combles (type loft) - GRANGE Immobilier
News

Rénovation totale, magnifique appartement situé dans les combles (type loft)

Rénovation totale, magnifique appartement situé dans les combles (type loft) CHF 450'000.-
2.5 rooms of 97 m2

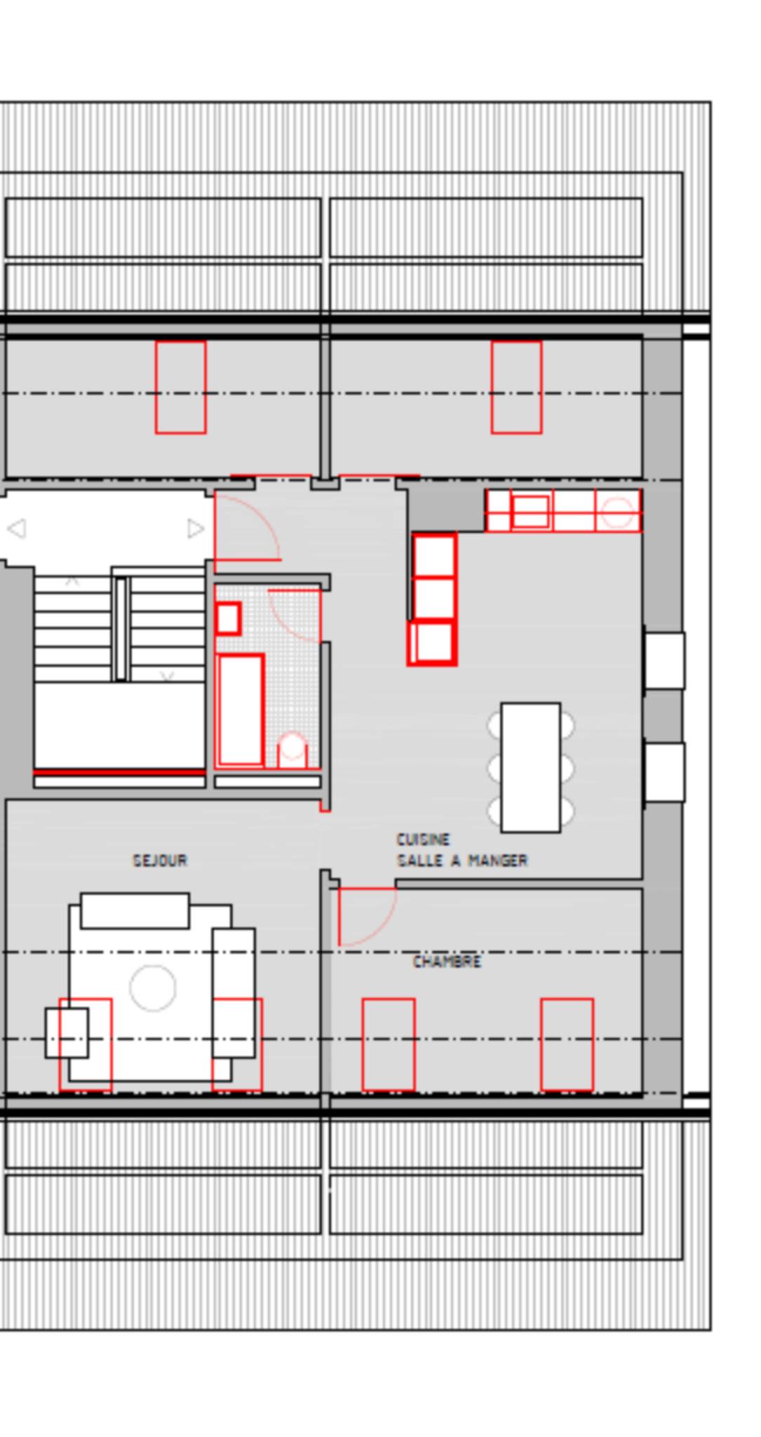
Appartement traversant de 2,5 pièces + deux disponibles/dressing/bureaux, bénéficiant d’une belle orientation et d’une belle luminosité.
Rénové avec goût et avec des matériaux contemporain, parquet au sol, 1 chambres à coucher, 1 salle de bains/WC, cuisine semi-ouverte entièrement équipée avec de l’électroménager Siemens, 1 séjour/salle à manger.

1 cave, ainsi qu’une place de parc extérieure à CHF 10'000 (en sus du prix de vente).

A visiter absolument !

Technique :

- Immeuble sans ascenseur
- Fenêtres triple vitrage PVC
- Électroménager Siemens
- Chauffage au mazout distribution par radiateurs

Reference number : 78856

  • 97 m2
  • 2.5 room(s)
  • 1 bedroom(s)

I'm interested in this property

Would you like to know more about this property? Find more information on MyGrange.

Sign up on our MyGrange platform to explore this property in more detail, save your favorites, and create your email alerts.

mygrange.ch

Explore our listings

See all