Rénovation totale, magnifique appartement neuf situé au 1er étage - GRANGE Immobilier
Opinions & Actualités

Rénovation totale, magnifique appartement neuf situé au 1er étage

Rénovation totale, magnifique appartement neuf situé au 1er étage CHF 480'000.-
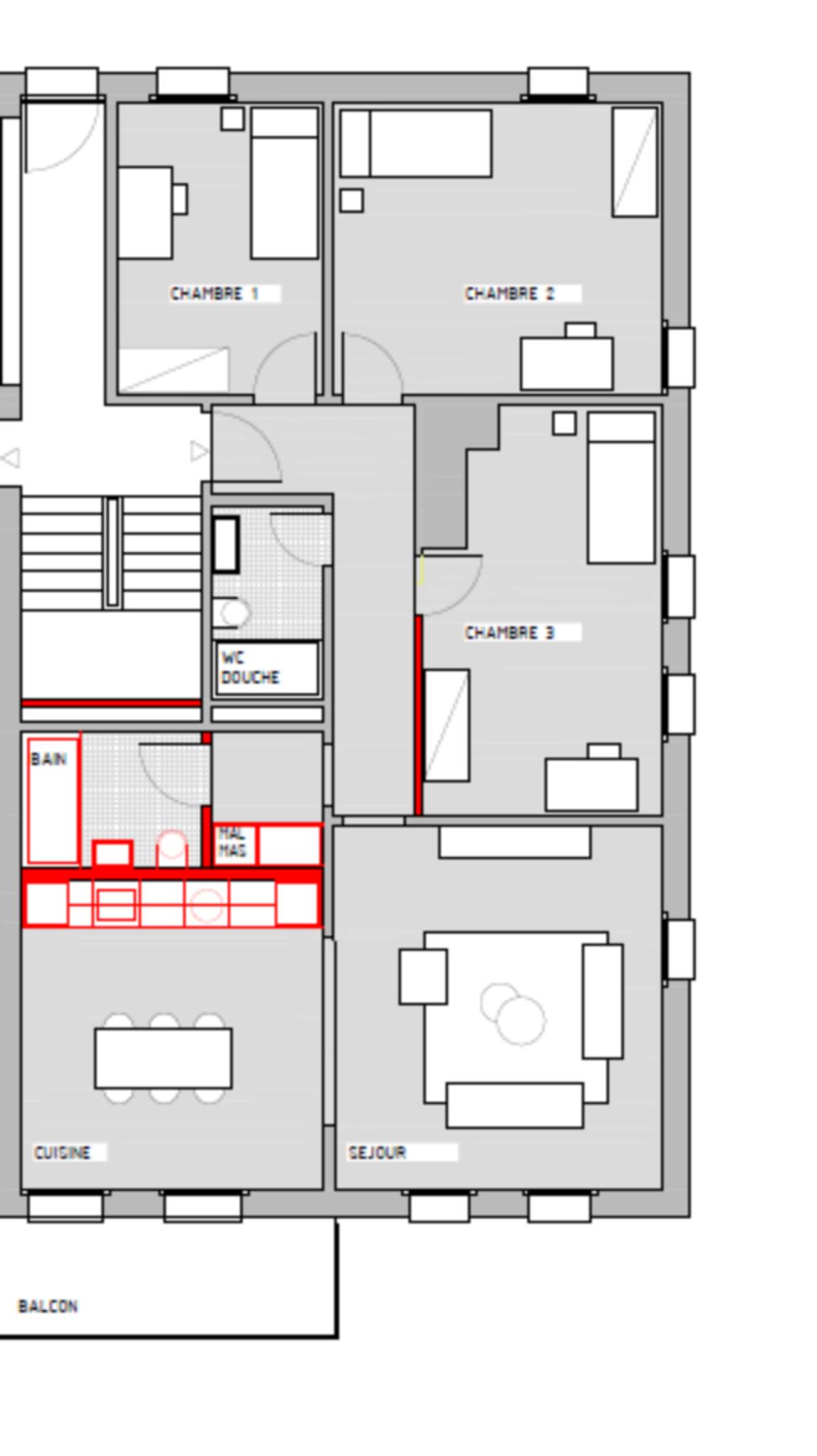
3.5 pièces de 84 m2

Appartement traversant de 3,5 pièces, bénéficiant d’une belle orientation et d’une belle luminosité.
Rénové avec goût et avec des matériaux contemporain, parquet au sol, 2 chambres à coucher, 1 salle de bains, 1 WC/lavabo séparé, cuisine ouverte entièrement équipée avec de l’électroménager Siemens, donnant sur un grand séjour/salle à manger, prolongé par un balcon, vue dégagée sans vis-à-vis.

1 cave, ainsi qu’une place de parc extérieure à CHF 10'000 (en sus du prix de vente).

A visiter absolument !

Technique :

- Immeuble sans ascenseur
- Fenêtres triple vitrage PVC
- Électroménager Siemens
- Chauffage au mazout distribution par radiateurs

Numéro de référence : 78848

  • 84 m2
  • 3.5 pièce(s)
  • 2 chambre(s)
  • 1 balcon(s)

Ce bien m'intéresse

Vous souhaitez en savoir plus sur ce bien ? Retrouvez plus d’informations sur MyGrange.

Inscrivez-vous sur notre plateforme MyGrange pour découvrir plus en détail ce bien, pour enregistrer vos favoris et créer vos alertes email.

mygrange.ch

Explorez nos annonces

Voir tout