Rue du Village 29B - Vernier - GRANGE Immobilier
News

Rue du Village 29B – Vernier

Rue du Village 29B – Vernier CHF 4'700.-/month
7.0 rooms of 170 m2

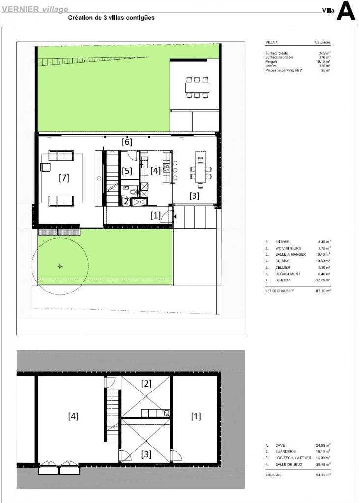
Située au coeur du charmant village de Vernier, belle villa contemporaine contiguë, d'environ 170m2 habitables et totalisant 265m2 utiles sur trois niveaux, au bénéfice de haut standard énergétique, d'un environnement calme et verdoyant, tout en conservant une proximité idéale des commerces, écoles et parcs.

Elle se compose au rez-de-chaussée, d'un hall d'entrée avec rangements et toilettes visiteurs, d'une cuisine agencée et équipée ouverte sur la salle à manger, d'une terrasse avec pergola, d'un cellier et d'un salon de plus de 37m2.

Le premier étage compte quatre chambres à coucher, une salle de bains ainsi qu'une salle de douche à l'italienne.

Le sous-sol comprend une grande salle de jeux chauffée de plus de 39m2, une cave de 24m2, une buanderie ainsi qu'un local technique / chaufferie.

La villa est complétée par un jardin d'environ 100m2 et une place de parking extérieure.

Pour tout renseignement complémentaire veuillez contacter notre agence de Carouge au 022 827 55 55.

Reference number : 10683

  • 170 m2
  • 7.0 room(s)
  • 4 bedroom(s)

I'm interested in this property

Would you like to know more about this property? Find more information on MyGrange.

Sign up on our MyGrange platform to explore this property in more detail, save your favorites, and create your email alerts.

mygrange.ch

I've visited this property and I am submitting my application.

Are you interested in this property and have already visited it? You can submit your application in our dedicated space.

Submit an application

Your rent guarantee without a bank deposit

Smart Caution

Explore our listings

See all