Appartement de 5 pièces en duplex avec jardin à Chavanne-des-Bois (VD) - GRANGE Immobilier
News

Appartement de 5 pièces en duplex avec jardin à Chavanne-des-Bois (VD)

Appartement de 5 pièces en duplex avec jardin à Chavanne-des-Bois (VD) CHF 4'100.-/month
5.0 rooms of 162.7 m2 CHF 240.- utilities

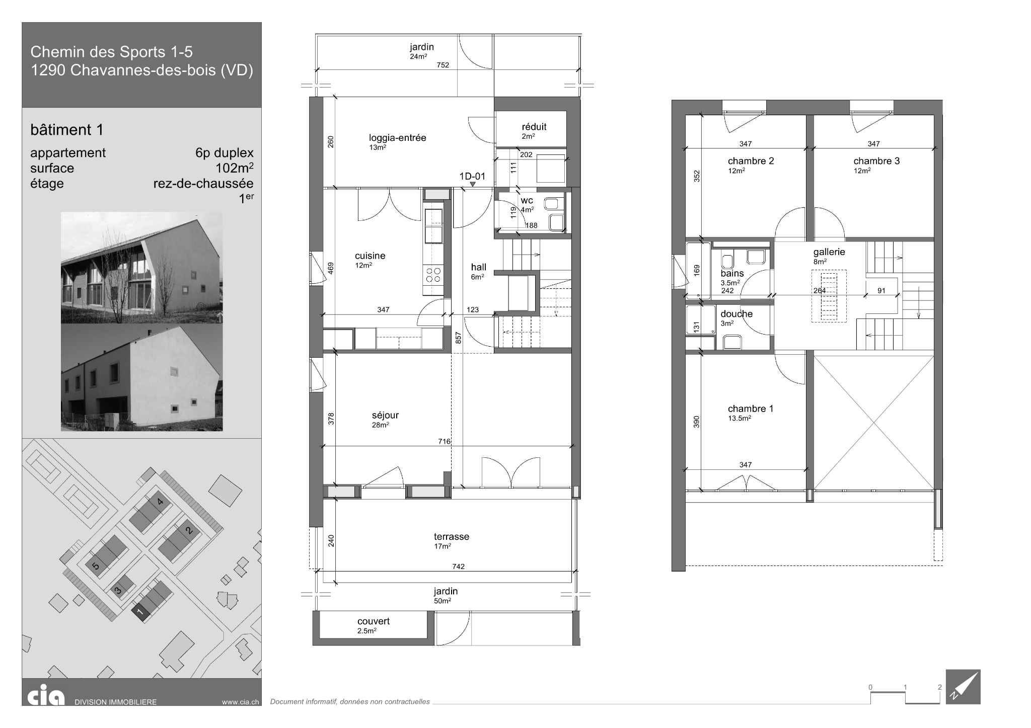
Nouvelle réalisation située aux portes de Genève, à deux pas de Versoix, du Collège du Léman et à l'abri de toutes nuisances.

Appartements de 6 pièces DUPLEX (5 selon normes vaudoises) traversant.

Rez-de-chaussée:
Spacieuse cuisine équipée ouverte sur terrasse, séjour/salle à manger avec belle hauteur de plafond ouvertes sur le jardin, réduit, wc séparé, local buanderie

1er étage:
Trois chambres, salle de bains avec wc, salle de douches.

Généreux grenier de 52m2

Jardin avec annexe pour les outils de jardinage ainsi qu'un local pour rangements divers.

Reference number : 68170

  • 162.7 m2
  • 5.0 room(s)
  • 3 bedroom(s)
  • 2 parking space(s)
  • 1 terrace(s)

I'm interested in this property

Would you like to know more about this property? Find more information on MyGrange.

Sign up on our MyGrange platform to explore this property in more detail, save your favorites, and create your email alerts.

mygrange.ch

I've visited this property and I am submitting my application.

Are you interested in this property and have already visited it? You can submit your application in our dedicated space.

Submit an application

Your rent guarantee without a bank deposit

Smart Caution

Explore our listings

See all