Appartement de 3 pièces aux Nations - GRANGE Immobilier
News

Appartement de 3 pièces aux Nations

Appartement de 3 pièces aux Nations CHF 2'300.-/month
3.0 rooms of 50.9 m2 CHF 120.- utilities

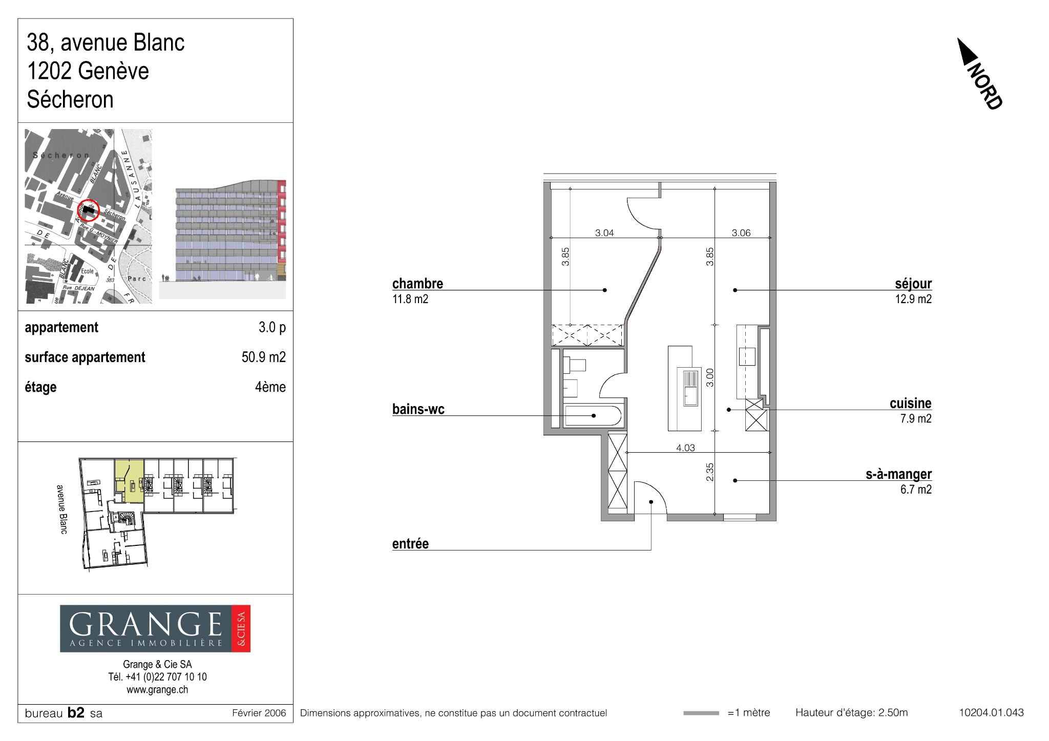
Avenue Blanc 38

Appartement de 3 pièces au 4ème étage d'un immeuble récent situé à proximité des Organisations Internationales et de toutes les commodités.

Ce bien se compose comme suit, hall d'entrée avec rangements, cuisine équipée, séjour, chambre à coucher et salle de bains avec toilettes. Surface d'environ 50 m2.

L'immeuble est équipée d'un ascenseur, de cave et une place de parking intérieur inclus dans le loyer.

Reference number : 18815

  • 50.9 m2
  • 3.0 room(s)
  • 1 parking space(s)

I'm interested in this property

Would you like to know more about this property? Find more information on MyGrange.

Sign up on our MyGrange platform to explore this property in more detail, save your favorites, and create your email alerts.

mygrange.ch

I've visited this property and I am submitting my application.

Are you interested in this property and have already visited it? You can submit your application in our dedicated space.

Your rent guarantee without a bank deposit

Smart Caution

Explore our listings

See all