Appartement 3.5 pièces à Roche VD - GRANGE Immobilier
News

Appartement 3.5 pièces à Roche VD

Appartement 3.5 pièces à Roche VD CHF 725'000.-
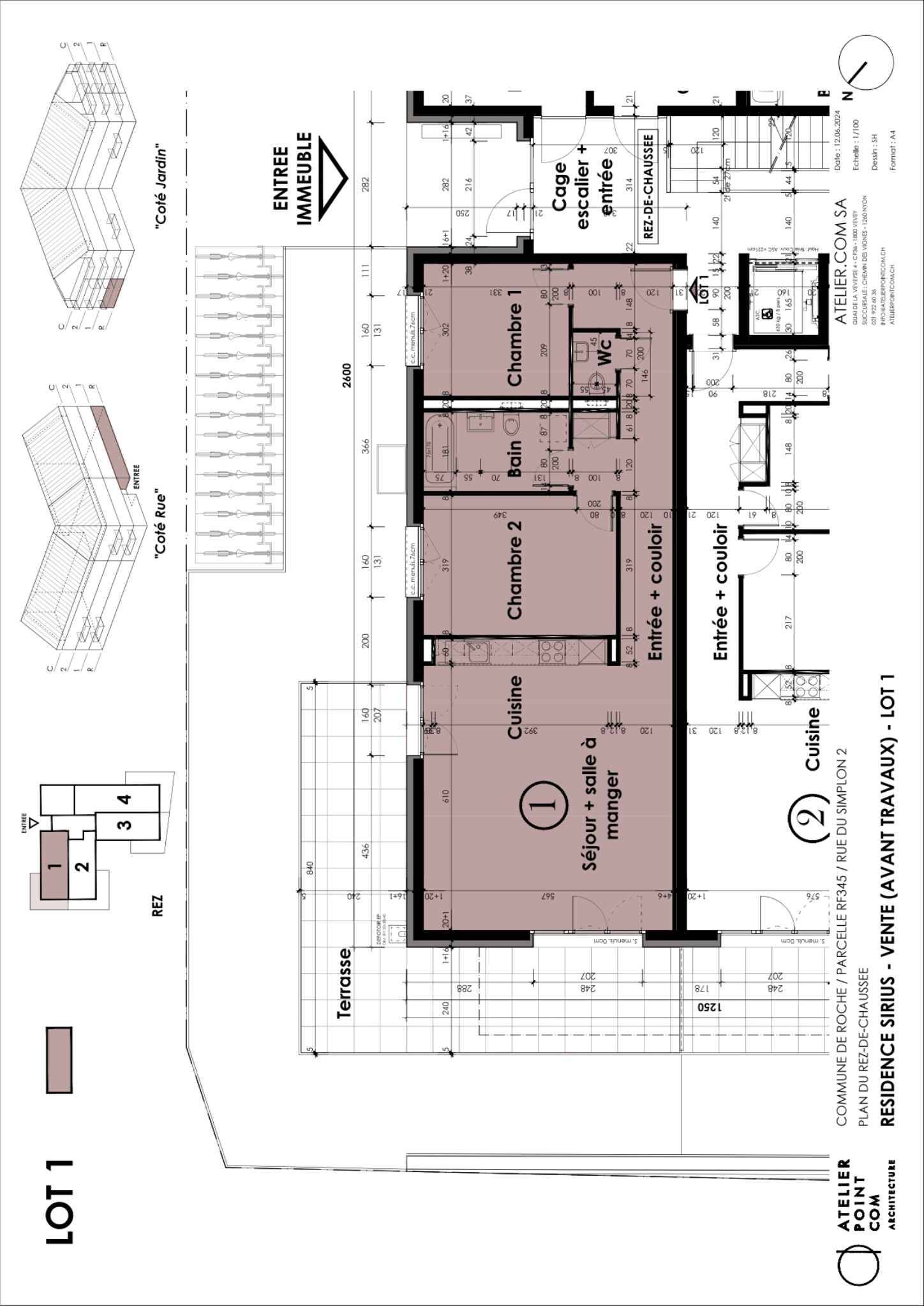
3.5 rooms of 97 m2

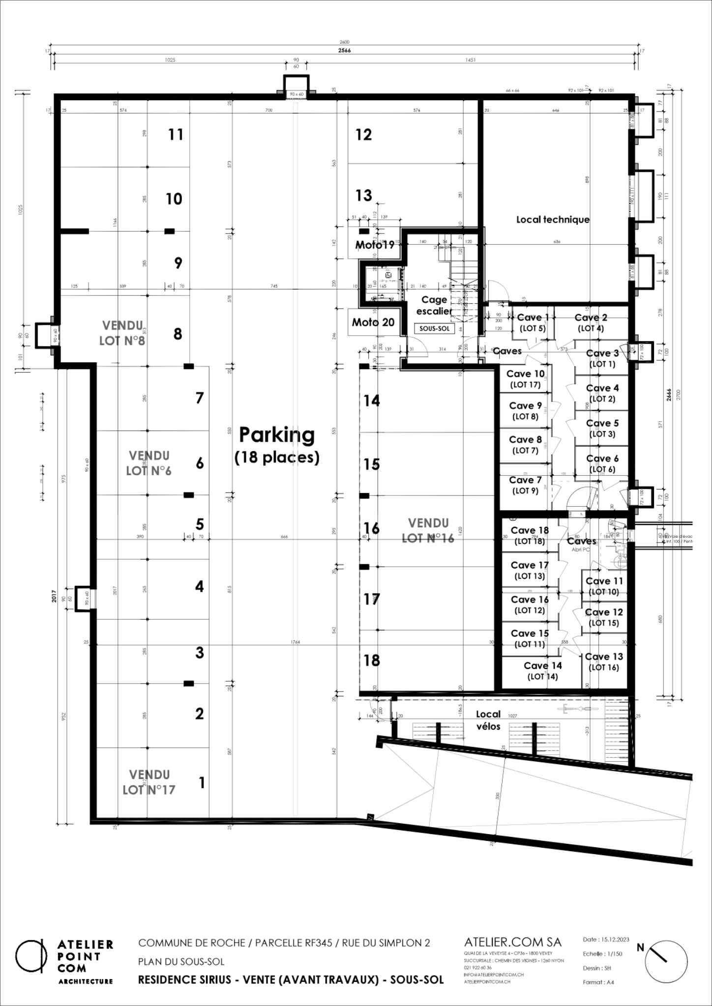
In a PPE of 18 apartments, this 3.5 room apartment has a living area of 84 m2 and a balcony of 10 m2.

It is composed as follows:

- Entrance hall and corridor
- 2 bedrooms
- Guest WC
- Bathroom
- Open kitchen
- Living/dining room opening onto the balcony
- Cellar

An indoor parking space is available in addition to the price at 35,000.-

Delivery winter 2025-2026.

Please note that the sale prices are net seller prices and that buyers will have to pay the brokerage commission which amounts to CHF 13,944.- for the apartment and CHF 757.- for the parking space.

Reference number : 61328

  • 97 m2
  • 3.5 room(s)
  • 2 bedroom(s)
  • 1 terrace(s)

I'm interested in this property

Would you like to know more about this property? Find more information on MyGrange.

Sign up on our MyGrange platform to explore this property in more detail, save your favorites, and create your email alerts.

mygrange.ch

Explore our listings

See all